
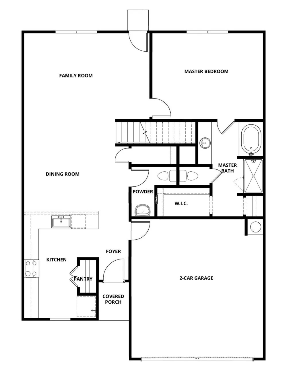
The Cottonwood floor plan is designed with growing families in mind, featuring five spacious bedrooms and two-and-a-half bathrooms spread across two thoughtfully arranged levels. At the heart of the home, an open-concept layout seamlessly blends the kitchen, dining area, and family room, creating an inviting atmosphere where everyday moments and special gatherings alike feel effortless. The secluded downstairs master suite offers a quiet retreat for homeowners, while upstairs a versatile loft provides flexible space ensuring families have plenty of room to live, grow, and enjoy life together.
© 2023 North Texas Real Estate Information Systems, Inc. All rights reserved. Disclaimer: All information deemed reliable but not guaranteed and should be independently verified. All properties are subject to prior sale, change or withdrawal. Neither listing broker(s) nor McCOWN Real Estate shall be responsible for any typographical errors, misinformation, or misprints and shall be held totally harmless. The database information herein is provided from and copyrighted by the North Texas Real Estate Information Systems, Inc. NTREIS data may not be reproduced or redistributed and is only for people viewing this site. All information provided is deemed reliable but is not guaranteed and should be independently verified. The advertisements herein are merely indications to bid and are not offers to sell which may be accepted. All properties are subject to prior sale or withdrawal. All rights are reserved by copyright
Last Updated: . Source: NTREIS
Provided By
Listing Agent: Mona Hill (#0226524), Phone: (281) 362-8998
Listing Office: LGI Homes (#LGIHM01)

Get an estimate on monthly payments on this property.
Note: The results shown are estimates only and do not include all factors. Speak with a licensed agent or loan provider for exact details. This tool is sourced from CloseHack.